Princípio de Pascal
O Princípio de Pascal é o princípio físico elaborado pelo físico e matemático francês Blaise Pascal (1623-1662), que estabelece que a pressão aplicada num ponto de um fluido em repouso transmite-se integralmente a todos os pontos do fluido.[1]

| Mecânica do contínuo |
|---|
![]() |
|
Leis
|
|
|
Definição
O princípio de pascal pode ser definido como a diferença de pressão como consequência da diferença na elevação de uma coluna de fluido. Sendo representado por:
onde, usando o Sistema Internacional de unidades,
- ΔP é a pressão hidrostática (em pascal), ou a diferença de pressão entre dois pontos da coluna de fluido, devido ao peso do fluido;
- é a densidade do fluido (em quilogramas por metro cúbico);
- é aceleração da gravidade da Terra ao nível do mar (em metros por segundo ao quadrado);
- Δh é a altura do fluido acima (em metros), ou a diferença entre dois pontos da coluna de fluido.
Podendo, ainda, ser expressa como
Explicação
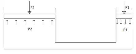
Ao observar a imagem da prensa hidráulica, podemos considerar que uma força é aplicada no pistão da direita (de área ) gerando uma pressão . Como o princípio de Pascal descreve, a pressão será transmitida integralmente pelo liquido gerando assim uma pressão no pistão esquerdo, equivalente a . Ou seja .
Se considerarmos que = 50 N e que a área do pistão da esquerda é dez vezes maior do que a da direita () teremos uma força de 500 N.
Dessa maneira podemos afirmar que por meio desse dispositivo, a força não só será transmitida, como também será ampliada. Esses princípios servem como base para diversas aplicações em nosso cotidiano.
O princípio de Pascal está subjacente ao funcionamento da prensa hidráulica, sendo que esta não viola a conservação de energia, uma vez que a distância total movida diminui para compensar o aumento da força. Ou seja, quando o menor pistão (da direita) é movido uma distancia para baixo, o pistão maior (da esquerda) será movido apenas uma fração desse valor para cima. De modo que a força de entrada multiplicada pela distância movida pelo pistão menor é igual à força de saída multiplicada pela distância movida pelo pistão maior.
Aplicações

Conforme mencionado anteriormente, a equação acima descreve que o acréscimo de pressão produzido num líquido em equilíbrio transmite-se integralmente a todos os pontos do líquido. Assim, depreende-se que o princípio (ou lei) de Pascal serve como base para o funcionamento de diversas máquinas e mecanismos hidráulicos como:
- macaco hidráulico
- prensas hidráulicas
- elevadores hidráulicos
- freio a disco
- direções hidráulicas
- amortecedores hidráulicos
Entretanto, suas aplicações não se limitam apenas a máquinas e mecanismos provenientes da engenharia mecânica, abrangendo áreas muito distintas do conhecimento, como:
- determinação do alcance de minas subaquáticas, uma vez que o deslocamento de água gerado por sua explosão traduz-se numa pressão que se mantém constante ao longo de uma região esférica (assinatura sísmica);[2]
- caixas d'águas, barragens e poços artesianos;
- praticantes de mergulho autônomo que fazem uso de scuba também devem entender este princípio. Pois a uma profundidade de 10 metros debaixo d'água a pressão é o dobro da pressão atmosférica ao nível do mar e aumenta em 100 kPa para cada 10 metros submergidos;[3]
- um dos aparelhos utilizados para aferir a pressão arterial em humanos é o esfigmomanômetro, cujo relógio medidor, que mostra os resultados, funciona seguindo o princípio por meio da fórmula (já citada acima): .[4]
Fórmulas
Tendo em vista os conceitos já definidos, e sabendo que, de acordo com a lei de pascal, a pressão é transmitida de maneira uniforme dizemos que
ou ainda,
Sabendo que pressão pode ser definida como sendo a força sobre a área total onde ela é aplicada , temos que
Ver também
Ligações externas
Referências
- Brunetti, Franco (2008). Mecânica dos fluidos. São Paulo: Pearson. 21 páginas
- GLOZA I.; MALINOWSKI S. J.; MARCHALEWSKI B.; Ranges and equipment for the measurement of the ship's underwater signatures. Academia Naval Polonesa, 2012. Disponível em: http://yadda.icm.edu.pl/yadda/element/bwmeta1.element.baztech-article-BWM1-0010-0006/c/httpwww_bg_utp_edu_plarthydroacoustics152012gloza.pdf Acesso em: 20 de junho de 2019.
- ACOTT, C. J.; The diving "Law-ers": a brief resume of their lives. Jornal da Sociedade de Medicina Subaquática do Pacífico Sul, 1999. Disponível em: http://archive.rubicon-foundation.org/xmlui/bitstream/handle/123456789/5990/SPUMS_V29N1_10.pdf?sequence=1 Acesso em: 21 de junho de 2019.
- HERMAN, I. P.; Physics of the human body: biological and medical physics, biomedical engineering; 2.ed. Cham Springer International Publishing, 2016. Disponível em: https://edisciplinas.usp.br/pluginfile.php/97576/mod_resource/content/1/PhysicsoftheHumanBody-Herman-01.pdf Acesso em: 22 de junho de 2019.

